Công trình có mặt bằng rộng với hình dạng khác biệt nên kiến trúc sư đưa ra thiết kế lạ mắt. Vào bất kỳ thời gian nào trong năm, ngôi nhà đều có được ánh sáng tự nhiên. Đặc biệt, ánh sáng từ phía nam chiếu vào nhà tạo nên các vệt nắng lung linh trên sàn.

Mảnh đất ở Kyoto (Nhật) rộng 100 m2 nằm chơi vơi giữa đường. Mặt tiền cong, nhìn về phía đường lớn, các mặt còn lại giáp với ngõ nhỏ.
Nhà 2 tầng kiểu Nhật trên mảnh đất hình quạt
XEM VIDEO CLIP:Đóng QC, Xem nhanh Youtube nhấn:
Bởi vậy, các kiến trúc sư vừa xử lý thiết kế phù hợp với thế đất vừa phải đảm bảo sự riêng tư cho ngôi nhà.
Dạng thanh lam lớn được sử dụng để ngôi nhà có sự kín đáo nhưng vẫn có thông gió, ánh sáng tự nhiên.
Vào bất kỳ thời gian nào trong năm, ngôi nhà đều có được ánh sáng tự nhiên. Đặc biệt, ánh sáng từ phía nam chiếu vào nhà tạo nên các vệt nắng lung linh trên sàn.
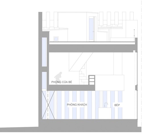
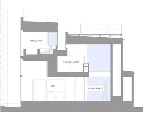
Tầng một gồm phòng khách, bếp, bàn ăn và phòng ngủ. Tầng 2 có thêm 2 phòng ngủ cho trẻ.
Ngôi nhà mang phong cách tối giản kiểu Nhật với đồ đạc tông trắng, gỗ.
Các khu vực riêng tư được làm kính mờ kín đáo.
Bố trí nội thất tầng một.
Bố trí nội thất tầng 2.

Không có nhận xét nào:
Đăng nhận xét